MÔ TẢ SẢN PHẨM
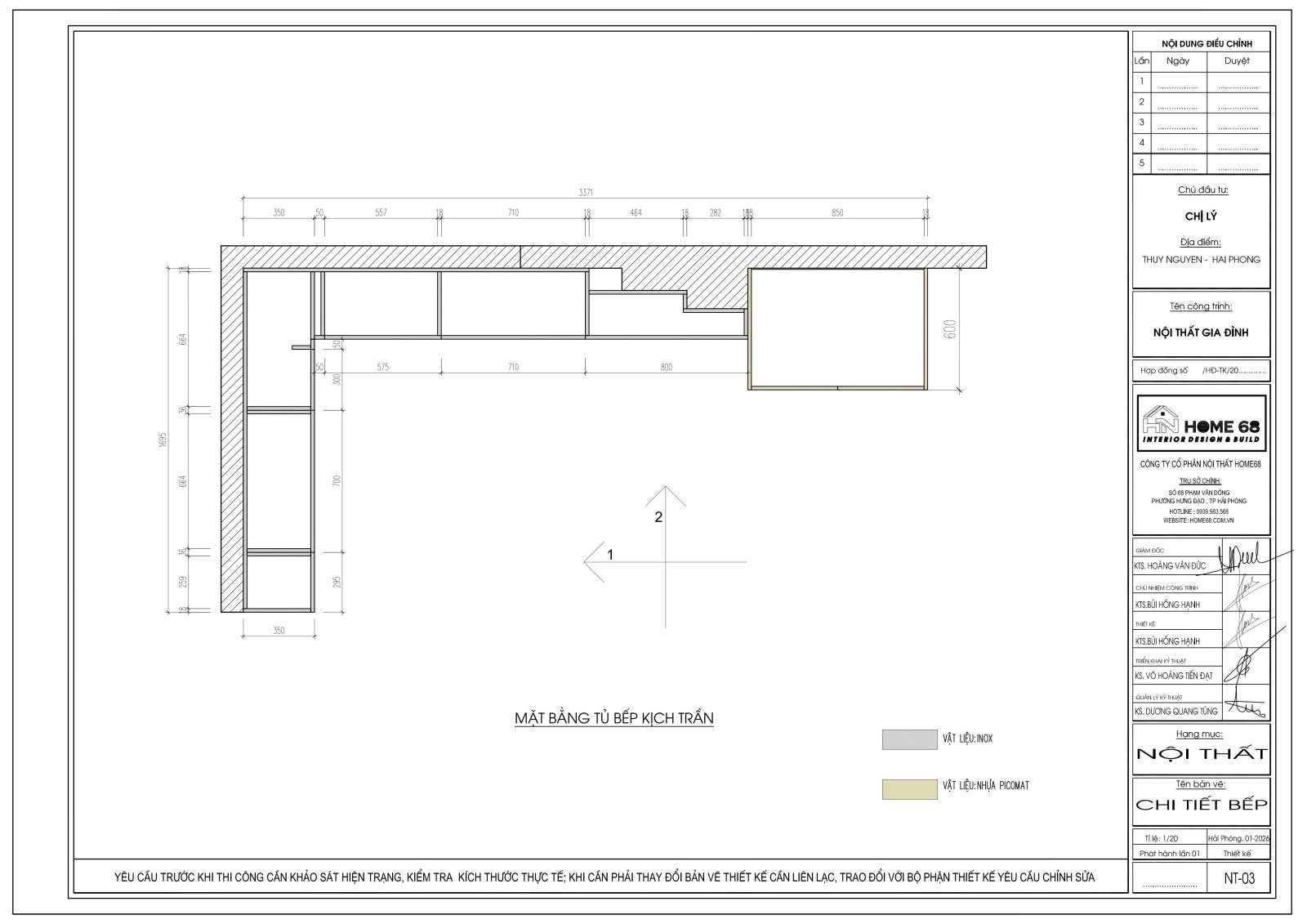
Với đặc điểm mặt bằng nhà phố, Home68 lựa chọn giải pháp tủ bếp chữ L nhằm tận dụng tối đa các góc bếp, mở rộng không gian thao tác và tạo sự liền mạch giữa các khu vực nấu nướng, sơ chế, rửa và lưu trữ, giúp gia chủ di chuyển thuận tiện và sử dụng bếp hiệu quả hơn trong sinh hoạt hằng ngày.
Toàn bộ phần thùng tủ sử dụng inox 304 vân sần caro cao cấp, có khả năng chống ẩm, chống mối mọt tuyệt đối, không cong vênh, không gỉ sét và chịu lực tốt, rất phù hợp với điều kiện khí hậu nóng ẩm tại Việt Nam. Đây là nền tảng quan trọng giúp hệ tủ luôn chắc chắn từ bên trong, đảm bảo tuổi thọ sử dụng lâu dài cho gia đình chị Linh mà vẫn giữ được tính ổn định và an toàn trong quá trình vận hành.
Phần cánh tủ được hoàn thiện bằng nhựa phủ acrylic màu trắng kem ánh hồng, mang đến cảm giác nhẹ nhàng, tinh tế và giúp không gian bếp luôn sáng thoáng. Bề mặt acrylic bóng mịn có khả năng phản chiếu ánh sáng tốt, hạn chế bám bẩn, dễ lau chùi và giữ màu lâu theo thời gian. Gam màu trắng kem pha ánh hồng vừa hiện đại vừa ấm áp, góp phần nâng tầm thẩm mỹ cho tổng thể gian bếp, phù hợp với không gian sinh hoạt gia đình.
(2).jpg)
Tủ bếp khung inox 304 cánh nhựa phủ acrylic nhà chị Linh tại Khúc Thừa Dụ
Bên cạnh đó, Home68 trang bị hệ phụ kiện bếp Higold cao cấp cho toàn bộ tủ bếp chữ L, bao gồm ray trượt, bản lề, giá để đồ và các hệ lưu trữ thông minh giúp việc đóng mở êm ái, chịu tải tốt và tối ưu công năng sử dụng. Nhờ sự đồng bộ giữa thiết kế, vật liệu và phụ kiện, gian bếp nhà chị Linh không chỉ đẹp mắt mà còn tiện nghi, mang lại trải nghiệm nấu nướng thoải mái và lâu dài cho gia chủ.
-h%C3%ACnh%20%E1%BA%A3nh-4.jpg)
Dự án thiết kế phòng bếp hiện đại, sang trọng tại Khúc Thừa Dụ
-h%C3%ACnh%20%E1%BA%A3nh-5.jpg)
Dự án thiết kế phòng bếp hiện đại, sang trọng tại Khúc Thừa Dụ
-h%C3%ACnh%20%E1%BA%A3nh-3.jpg)
Dự án thiết kế phòng bếp hiện đại, sang trọng tại Khúc Thừa Dụ
-h%C3%ACnh%20%E1%BA%A3nh-2.jpg)
Dự án thiết kế phòng bếp hiện đại, sang trọng tại Khúc Thừa Dụ
-h%C3%ACnh%20%E1%BA%A3nh-1.jpg)
Dự án thiết kế phòng bếp hiện đại, sang trọng tại Khúc Thừa Dụ
Với kinh nghiệm nhiều năm trong lĩnh vực thiết kế và thi công nội thất tại Hải Phòng, HOME68 luôn chú trọng khảo sát thực tế, lên phương án phù hợp và thi công chỉn chu trong từng chi tiết. Dự án tủ bếp chữ L nhà chị Linh tại Khúc Thừa Dụ tiếp tục là minh chứng cho phong cách làm việc chuyên nghiệp, cam kết chất lượng và giá trị sử dụng bền vững mà HOME68 mang đến cho mỗi khách hàng.
Nếu bạn đang tìm kiếm một giải pháp tủ bếp lý tưởng cho không gian nhà mình, tủ bếp inox 304 cánh kính chắc chắn sẽ là lựa chọn đáng cân nhắc!
>> Xem thêm: Mẫu tủ bếp 304 sơn tĩnh điện, cánh kính cường lực tại Hải Phòng - CĐT chị Vân Anh
CÔNG TY CỔ PHẦN NỘI THẤT HOME 68
Công Ty Cổ Phần Nội Thất HOME 68 chuyên thiết kế, thi công nội thất, tủ bếp, xây nhà trọn gói. Chúng tôi cam kết chất lượng tốt nhất, giá tối ưu nhất
